
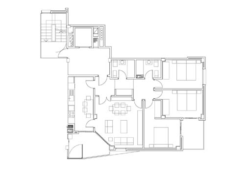
Edificio para 24 viviendas VPO, locales comerciales en planta baja, trasteros y garajes en planta sótano. Está situado en la periferia del casco antiguo de Tafalla, formando parte de una manzana de edificación residencial, con patio de manzana.
Se ha tratado de proyectar unas viviendas sencillas y funcionales con 3 dormitorios, en las que destaca el elemento de tendedero, mediante paneles móviles de chapa perforada, que permiten un doble uso de la terraza.
En colaboración con José Martín Errea Rodríguez, arquitecto; Rosa Francés Olloqui, arquitecto; Luis Turrillas Tihista, aparejador e Ingeniería Leyre.